Year: 2017–2020
Location: Asia Pacific
Role: Lead Designer [Documentation], Trainer [Documentation], Project Member [Designer]
Involvement: Design Development, Design Documentation
Design Practice: GG
Fast Facts:
Location: Asia Pacific
Role: Lead Designer [Documentation], Trainer [Documentation], Project Member [Designer]
Involvement: Design Development, Design Documentation
Design Practice: GG
Fast Facts:
-
Managed over 100 store projects in Asia Pacific
-
Led and trained the Jakarta team
- Coordinated with the Hong Kong team to liaise with the client
Retail
— Jewellery
Pandora
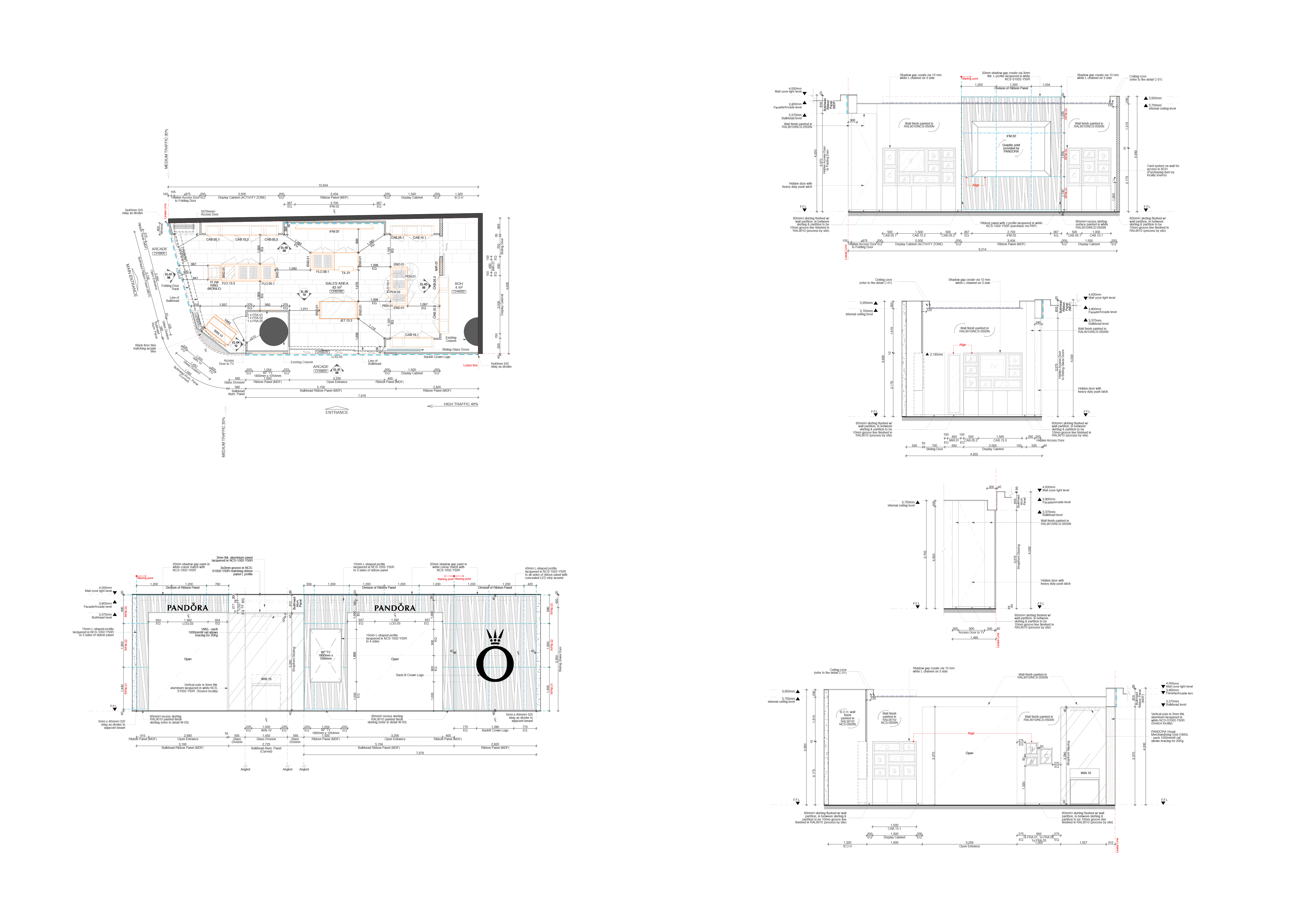
Pandora, one of the world’s top-selling jewellery brands, owes much of its success to considered interior design. Between 2017 and 2020, over 100 stores were designed across Asia Pacific in collaboration with the Hong Kong team. For this folio, the featured project is the Pandora store at Jewel Changi Airport, Singapore.
Pandora, one of the world’s top-selling jewellery brands, owes much of its success to considered interior design. Between 2017 and 2020, over 100 stores were designed across Asia Pacific in collaboration with the Hong Kong team. For this folio, the featured project is the Pandora store at Jewel Changi Airport, Singapore.