Year: 2019–2020
Location: Indonesia and Singapore
Role: Lead Designer [Store Guideline], Project Member [Designer]
Involvement: Research & Benchmark, Concept Development, Design Development, Design Documentation, Store Guideline
Design Practice: GG
Fast Facts:
Location: Indonesia and Singapore
Role: Lead Designer [Store Guideline], Project Member [Designer]
Involvement: Research & Benchmark, Concept Development, Design Development, Design Documentation, Store Guideline
Design Practice: GG
Fast Facts:
-
Developed store guidelines with the Jakarta and Singapore team
-
Coordinated with clients in Jakarta and Singapore
- Sourced furniture from China
Hospitality [Food and Beverage] — Bakery and Coffee Shop
Maxx Coffee
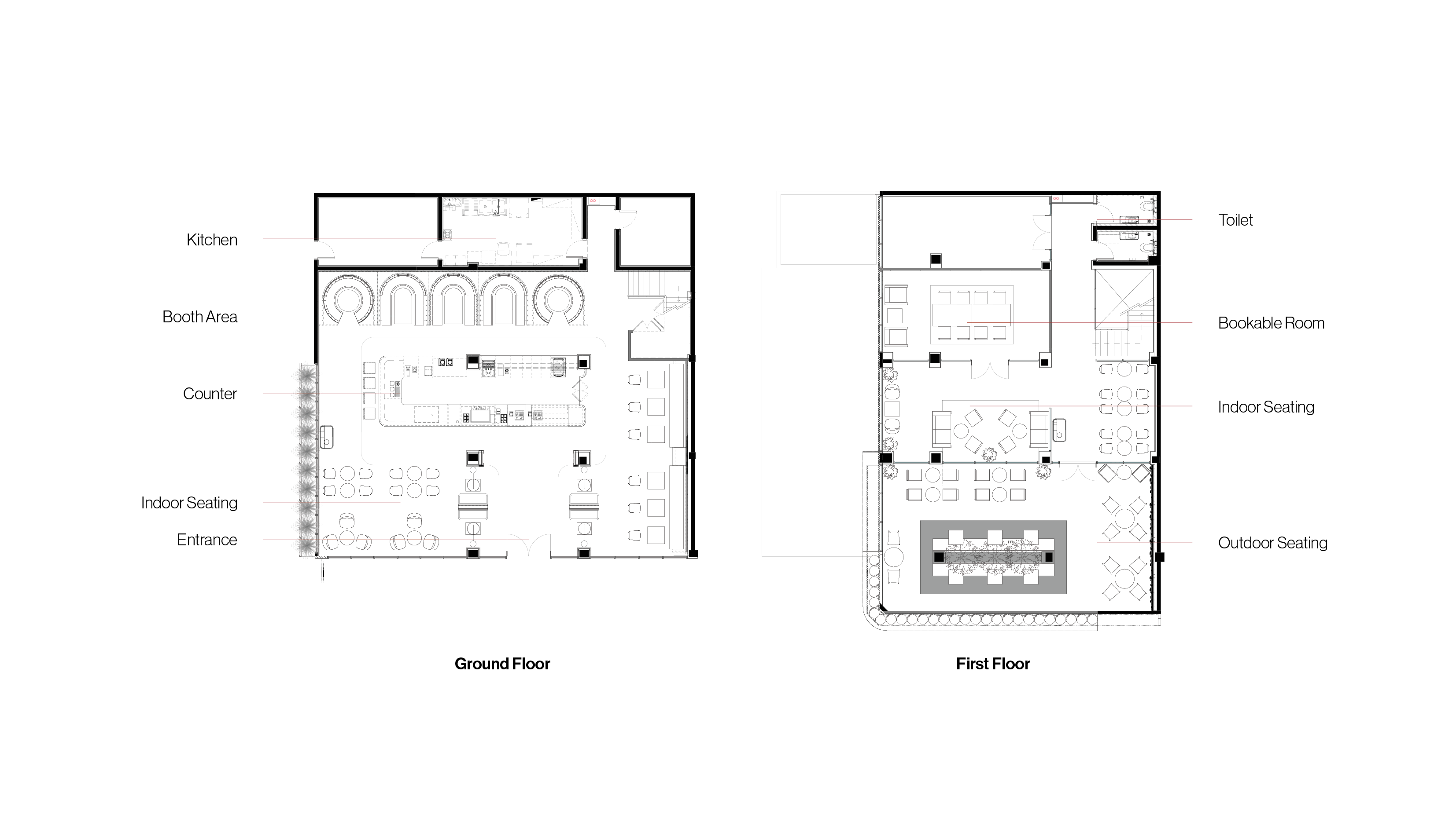
This project involved developing a store guideline for Maxx Coffee to ensure visual consistency across future stores. Key focuses included enhancing the customer journey, creating a standout shopfront, and designing modular elements. This folio highlights the Maxx Coffee store in Kelapa Gading, Jakarta.
This project involved developing a store guideline for Maxx Coffee to ensure visual consistency across future stores. Key focuses included enhancing the customer journey, creating a standout shopfront, and designing modular elements. This folio highlights the Maxx Coffee store in Kelapa Gading, Jakarta.