Year: 2019
Location: Maroochydore, QLD, Australia
Role: Project Member [Designer]
Involvement: Design Development, Design Documentation [Preliminary]
Design Practice: GG
Location: Maroochydore, QLD, Australia
Role: Project Member [Designer]
Involvement: Design Development, Design Documentation [Preliminary]
Design Practice: GG
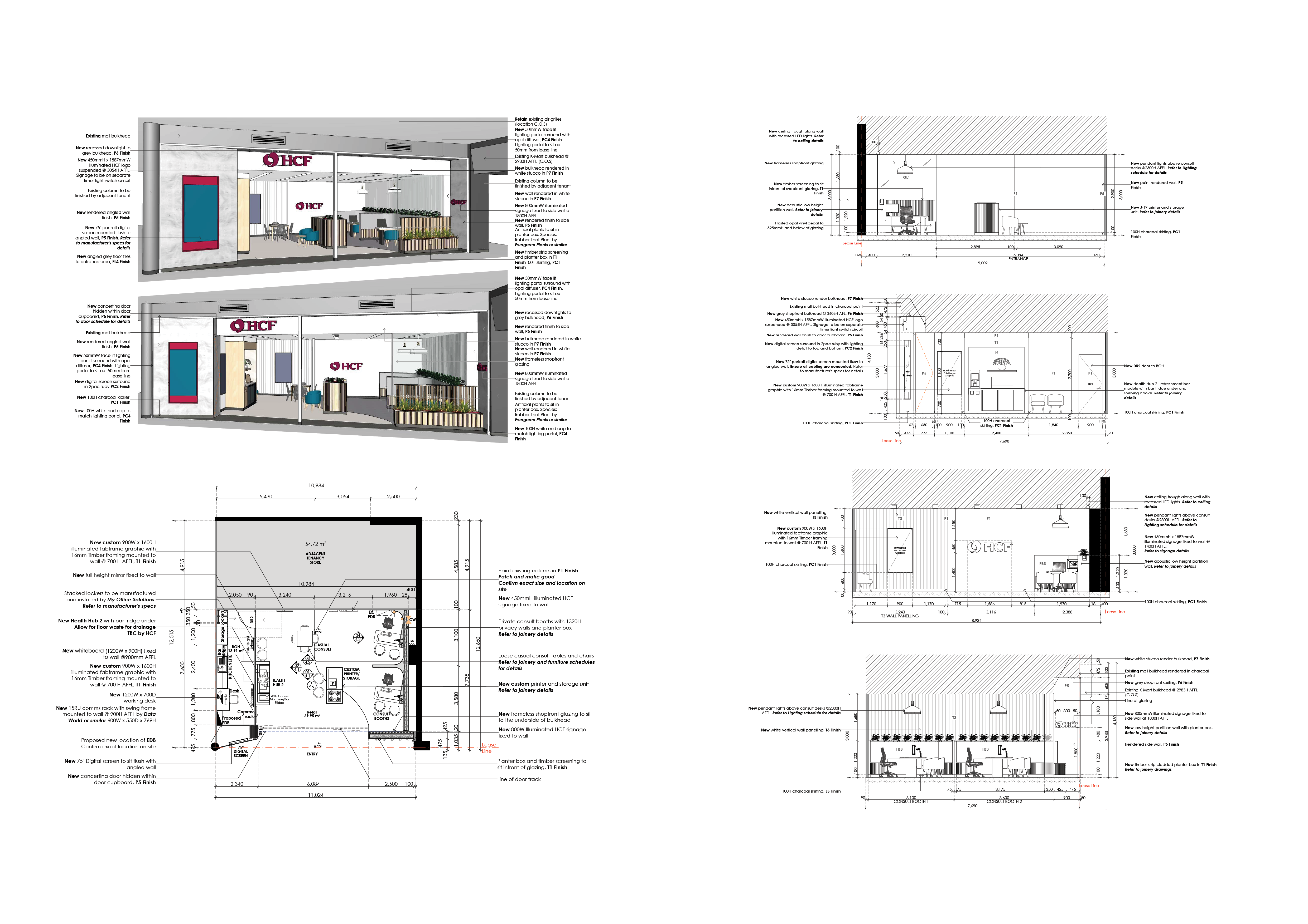
Healthcare Services — Health Insurance
HCF
As a well-known Australian health insurance provider, HCF wanted a space that feels warm and approachable while maintaining a clean, professional image. The goal was to design an environment that encourages customers to relax, have open conversations with staff, and make informed health decisions.
As a well-known Australian health insurance provider, HCF wanted a space that feels warm and approachable while maintaining a clean, professional image. The goal was to design an environment that encourages customers to relax, have open conversations with staff, and make informed health decisions.